Вариаторы цепные пластинчатые ВЦБ

Вариатор цепной пластинчатый ВЦБ служит для плавного изменения частоты вращения выходного вала различного рода машин/устройств, в которых необходимо бесступенчатое регулирование. Исходя из особенностей места применения вариаторов, они делятся на две базовые категории, в первом случае речь идет о моделях, которые эксплуатируются в условиях умеренного (исп. У) климата при температуре от 1 до 45°С, во втором случае подразумеваются модификации, которые применяются в тропическом климате (исп. Т) при температурном режиме от 1 до 55°С. Кроме того, стоит отметить, что вариаторы могут производиться как с редукторной приставкой на входе, так и без таковой. Без приставки диапазон оборотов регулирующего винта варьируется от 7,8 до 19,8, эти же показатели характерны для оборудования, имеющего редукторную приставку на входе. За счет длительно ресурса использования, вариаторы относятся к группе износостойкого и долговечного оборудования.
Цена: от 16 100 руб.
Базовые условия использования вариаторов:
- Тип нагрузки: постоянная/переменная, одно направление;
- Режимы работы выбираются, опираясь на условия использования оборудования: непрерывная эксплуатация или с остановками;
- Вал выполняет вращение в обе стороны;
- Особенности окружающей среды: невзрывоопасная, неагрессивная.
Общее описание

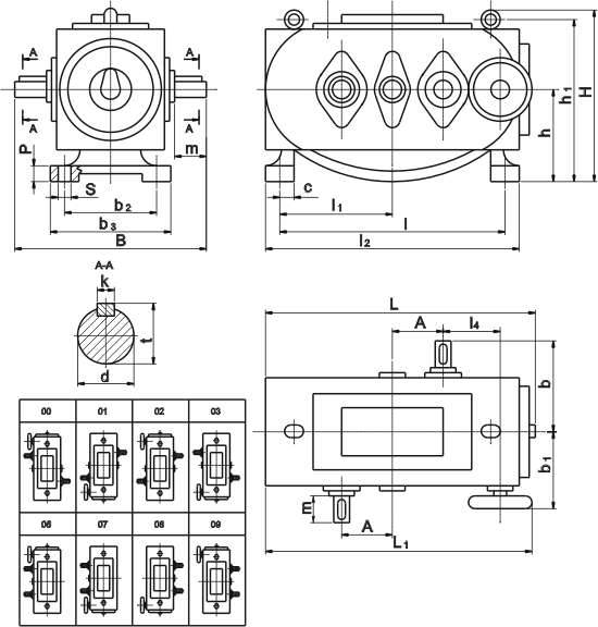
РИС . 1
Габаритные и присоединительные размеры
(Вариатор без редуктора)

РИС . 2
Габаритные и присоединительные размеры
(Вариатор с редуктором на входе)
|
Типоразмер вариатора |
L |
B |
H |
A |
h |
h1 |
b0 |
b1 |
b2 |
b3 |
b4 |
l |
l1 |
|---|---|---|---|---|---|---|---|---|---|---|---|---|---|
|
ВЦ1Б |
408 |
300 |
280 |
80 |
132 |
253 |
150 |
130 |
150 |
185 |
172 |
320 |
160 |
|
ВЦ1БФ |
408 |
— |
280 |
90 |
132 |
253 |
150 |
— |
150 |
185 |
172 |
320 |
160 |
|
ВЦ2Б |
530 |
370 |
313 |
95 |
150 |
286 |
185 |
165 |
240 |
290 |
227 |
480 |
240 |
|
ВЦЗБ |
670 |
470 |
353 |
125 |
170 |
326 |
235 |
190 |
250 |
300 |
277 |
620 |
310 |
|
ВЦ4Б |
816 |
516 |
420 |
150 |
200 |
384 |
258 |
238 |
290 |
346 |
336 |
760 |
380 |
|
ВЦ5Б |
940 |
660 |
810 |
180 |
250 |
474 |
330 |
276 |
360 |
420 |
376 |
880 |
440 |
|
ВЦ6Б |
1120 |
794 |
635 |
212,5 |
300 |
590 |
397 |
310 |
410 |
480 |
405 |
1050 |
525 |
|
Типоразмер вариатора |
l2 |
C |
P |
S |
d |
k |
t |
m |
d1 |
k1 |
t1 |
n |
Масса без редуктора, кг |
Масса с редуктором, кг |
|---|---|---|---|---|---|---|---|---|---|---|---|---|---|---|
|
ВЦ1Б |
370 |
50 |
16 |
14 |
24 |
8 |
27 |
50 |
20 |
6 |
22,5 |
36 |
29 |
34 |
|
ВЦ1БФ |
370 |
50 |
16 |
14 |
24 |
8 |
27 |
50 |
- |
- |
- |
- |
- |
46 |
|
ВЦ2Б |
530 |
70 |
19 |
18 |
28 |
8 |
31 |
60 |
28 |
8 |
31 |
60 |
48 |
56 |
|
ВЦЗБ |
670 |
80 |
25 |
18 |
32 |
10 |
35 |
80 |
30 |
8 |
33 |
80 |
83 |
97 |
|
ВЦ4Б |
816 |
122 |
30 |
25 |
38 |
10 |
41 |
80 |
38 |
10 |
41 |
80 |
215 |
259 |
|
ВЦ5Б |
940 |
130 |
40 |
28 |
45 |
14 |
49 |
110 |
40 |
12 |
43 |
82 |
338 |
405 |
|
ВЦ6Б |
1120 |
155 |
40 |
36 |
60 |
18 |
64 |
140 |
55 |
16 |
59 |
110 |
660 |
745 |
ТАБЛ. 1 Габаритные и присоединительные размеры
Технические характеристики вариаторов без редукторной приставки на входе
|
Исполнение |
Диапазон регулирования |
Частота вращения вала , об/мин , на |
Передаваемая мощность, кВт, при |
Крутящий момент на выходном валу, Н*м, при |
Кол-во оборотов рег. винта на диапазон |
||||
|---|---|---|---|---|---|---|---|---|---|
|
n2max/n2min |
входе n1 |
выходе n2min |
выходе n2max |
n2min |
n2max |
n2min |
n2max |
||
|
ВЦ1Б.0.101-.. |
3 |
950 |
550 |
1645 |
1,12 |
1,7 |
20 |
10,0 |
8 |
|
ВЦ1Б.1.101-.. |
4,5 |
950 |
448 |
2014 |
0,92 |
1,7 |
8,2 |
9,6 |
|
|
ВЦ1Б.2.101-.. |
6 |
820 |
335 |
2010 |
0,7 |
1,35 |
6,5 |
11 |
|
|
ВЦ2Б.0.101-.. |
3 |
950 |
550 |
1645 |
2,24 |
3,2 |
40 |
19 |
7,8 |
|
ВЦ2Б.1.101-.. |
4,5 |
950 |
448 |
2014 |
1,8 |
3 |
14,5 |
9,5 |
|
|
ВЦ2Б.2.101-.. |
6 |
820 |
335 |
2010 1800 |
1,4 |
2,6 |
12,6 |
10 |
|
|
ВЦЗБ.0.101-.. |
3 |
950 |
550 |
1645 |
3,35 |
5,0 |
61 |
29,6 |
10,2 |
|
ВЦЗБ. 1.101-.. |
4,5 |
950 |
448 |
2014 |
2,65 |
4,8 |
23,2 |
12,3 |
|
|
ВЦЗБ.2.101-.. |
6 |
820 |
335 |
2010 |
2,12 |
4,5 |
20,8 |
13,1 |
|
|
ВЦ4Б.0.101-.. |
3 |
920 |
532 |
1596 |
5,3 |
7,5 |
96 |
46 |
12 |
|
ВЦ4Б.1.101-.. |
4,5 |
920 |
434 |
1950 |
4,25 |
7,5 |
37 |
14,4 |
|
|
ВЦ4Б.2.101-.. |
6 |
820 |
335 |
2010 |
3,35 3,0 |
6,6 |
32 |
16,8 |
|
|
ВЦ5Б.0.101-.. |
3 |
920 |
532 |
1596 |
10,0 8,8 7,8 |
13,2 |
181 |
81 |
14,5 |
|
ВЦ5Б.1.101-.. |
4,5 |
920 |
434 |
1950 |
8,0 7,2 6,4 |
13,0 |
65 |
18 |
|
|
ВЦ5Б.2.101-.. |
6 |
820 |
335 |
2010 |
6,3 5,6 |
11,2 |
53 |
19,3 |
|
|
ВЦ6Б.0.101-.. |
3 |
625 |
360 |
1080 |
11,2 |
19 |
300 |
180 |
14,2 |
|
ВЦ6Б. 1.101-.. |
4 |
625 |
312 |
1250 |
9,5 |
19 |
140 |
17,3 |
|
|
ВЦ6Б. 2.101-.. |
5,6 |
550 |
233 |
1300 |
7,5 |
16 |
120 |
19,8 |
|
Примечание: Вместо двух точек в конце обозначения исполнения вариатора проставляют две цифры -условное обозначение способа регулирования и варианта сборки.
ПРИМЕР УСЛОВНОГО ОБОЗНАЧЕНИЯ ПРИ ЗАКАЗЕ
ВЦ1Б1.101-03, что означает:
- ВЦ1Б – типоразмер;
- 1 - диапазон регулирования;
- 101 - без редуктора;
- 03 - схема сборки и способ регулирования.
Технические характеристики вариаторов с редукторной приставкой на входе
|
Исполнение |
Диапазон регули- |
Частота вращения, об/мин, на |
Передаваемая мощность, кВт, при |
Крутящий момент на выходном валу, Н*м, при |
Кол-во оборотов рег. винта на диапазон |
|||||
|---|---|---|---|---|---|---|---|---|---|---|
|
n2max/n2min |
входе прист. n |
входе вариатора n1 |
входе вариат. n2min |
выходе вариат. n2max |
n2min |
n2max |
n2min |
n2max |
||
|
ВЦ1Б.1.131-.. |
4,5 |
1420 |
950 |
448 |
2014 |
0,92 |
1,7 |
20 |
8,2 |
9,6 |
|
ВЦ1Б.2.131-.. |
6 |
820 |
335 |
2010 |
0,7 |
1,35 |
6,5 |
11 |
||
|
ВЦ2Б.0.131-.. |
3 |
1440 |
950 |
550 |
1645 |
2,24 |
3,2 |
40 |
19 |
7,8 |
|
ВЦ2Б.1.131-.. |
4,5 |
950 |
448 |
2014 |
1,8 |
3,0 |
14,5 |
9,5 |
||
|
ВЦ2Б.2.131-.. |
6 |
820 |
335 |
2010 |
1,4 |
2,6 |
12,6 |
10 |
||
|
ВЦЗБ.0.131-.. |
3 |
950 |
550 |
1645 |
3,35 |
5,0 |
61 |
29,6 |
10,2 |
|
|
ВЦЗБ. 1.131-.. |
4,5 |
950 |
448 |
2014 |
2,65 |
4,8 |
23,2 |
12,3 |
||
|
ВЦЗБ.2.131-.. |
6 |
820 |
335 |
2010 |
2,12 |
4,5 |
20,8 |
13,1 |
||
|
ВЦ4Б.0.131-.. |
3 |
1450 |
920 |
532 |
1596 |
5,3 |
7,5 |
96 |
46 |
12 |
|
ВЦ4Б.1.131-.. |
4,5 |
920 |
434 |
1950 |
4,25 |
7,5 |
37 |
14,4 |
||
|
ВЦ4Б.2.131-.. |
6 |
820 |
335 |
2010 |
3,35 |
6,6 |
32 |
16,8 |
||
|
ВЦ5Б.0.131-.. |
3 |
920 |
532 |
1596 |
10,0 |
13,2 |
181 |
81 |
14,5 |
|
|
ВЦ5Б.1.131-.. |
4,5 |
920 |
434 |
1950 |
8,0 |
13,0 |
65 |
18 |
||
|
ВЦ5Б.2.131-.. |
6 |
820 |
335 |
2010 |
6,3 |
11,2 |
53 |
19,3 |
||
|
ВЦ6Б.0.131-.. |
3 |
625 |
360 |
1080 |
11,2 |
19 |
300 |
180 |
14,2 |
|
|
ВЦ6Б. 1.131-.. |
4 |
625 |
312 |
1250 |
9,5 |
19 |
140 |
17,3 |
||
|
ВЦ6Б. 2.131-.. |
5,6 |
550 |
233 |
1300 |
7,5 |
16 |
120 |
19,8 |
||
Примечание:
1. На вариаторах ВЦ1БФ2.131-03 мощность установленного электродвигателя 0,55 кВт, на вариаторах ВЦ1БДФ2.131-73 – 1,1 кВт.
2. Для ВЦ1БФ2.131-03 и ВЦ1БДФ2.131-73 n1 = 730 об/мин.
Вместо двух точек в конце обозначения исполнения вариатора проставляют две цифры - условное обозначение способа регулирования и варианта сборки.
Пример условного обозначения при заказе:
ВЦ1Б1.131-03, где:
- ВЦ - вариатор цепной;
- 1 - типоразмер (габарит);
- Б - модификация;
- 1 - диапазон регулирования;
- 131 - вариант комплектации с редуктором на входе;
- 3 - схема сборки.